您好,欢迎进入内蒙古铂瓷空间设计有限责任公司
企业微博   |  企业微信       网站地图
0472-2552236
服务热线:15049340693
主页 > 精彩案例>锦尚国际240平米现代风格

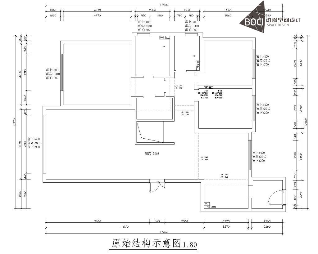
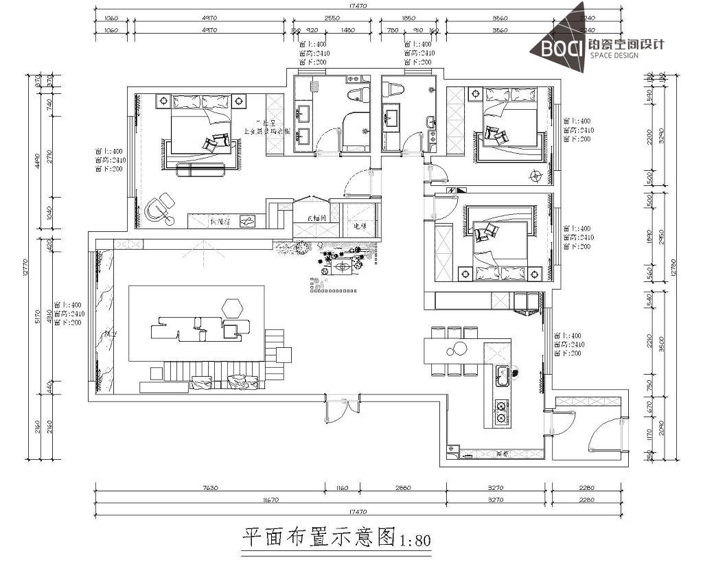
锦尚国际240平米现代风格

  • 锦尚国际240平米现代风格
  • 锦尚国际240平米现代风格
  • 锦尚国际240平米现代风格
  • 锦尚国际240平米现代风格
  • 锦尚国际240平米现代风格
  • 锦尚国际240平米现代风格
  • 锦尚国际240平米现代风格
  • 锦尚国际240平米 现代装修风格设计师冉梦兰...
装修详情
累加访问量2755
预约业主共161
  • 风格: 现代简约
  • 户型: 四居室
  • 局部: 整套
  • 面积: 231-280㎡
  • 设计师: 冉梦兰
  • 小区: 锦尚国际
锦尚国际240平米现代风格锦尚国际240平米现代风格锦尚国际240平米现代风格锦尚国际240平米现代风格锦尚国际240平米现代风格锦尚国际240平米现代风格锦尚国际240平米现代风格

评价

我要评价

满意度:
验证码: 验证码,看不清楚?请点击刷新验证码

设计师

冉梦兰
设计总监
免费预约 在线Q Ta

所属小区

包头锦尚国际

锦尚国际 免费预约

按此风格设计

已有161人提交

提交信息,试试看!

已有96人提交

装修计算器今天已有 590 位业主获取了装修预算

* 输入面积小于30㎡时,报价结果按30㎡计算

快速报价

更多家居案例

扫码即获

扫码即获

更多家居案例

share
  1. 官方微信服务号