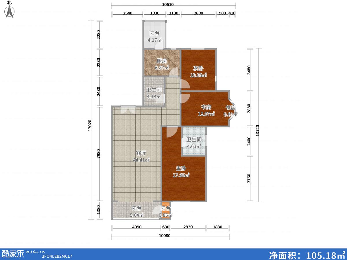
包头中建·御澜世家131㎡
-
日期:2018-06-20
-
点击:714
套内面积: 105.18平方米
楼盘信息: 内蒙古 包头 中建・御澜世家
提交信息,试试看!
已有96人提交

