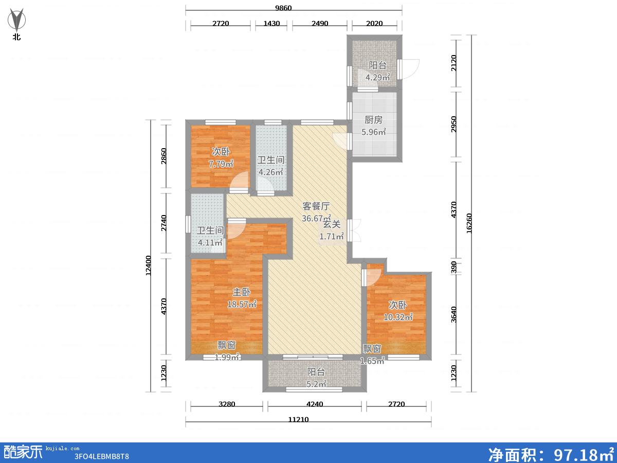
包头万合广场141㎡
-
日期:2018-06-20
-
点击:746
套内面积: 97.18平方米
楼盘信息: 内蒙古 包头 万合广场
提交信息,试试看!
已有96人提交

