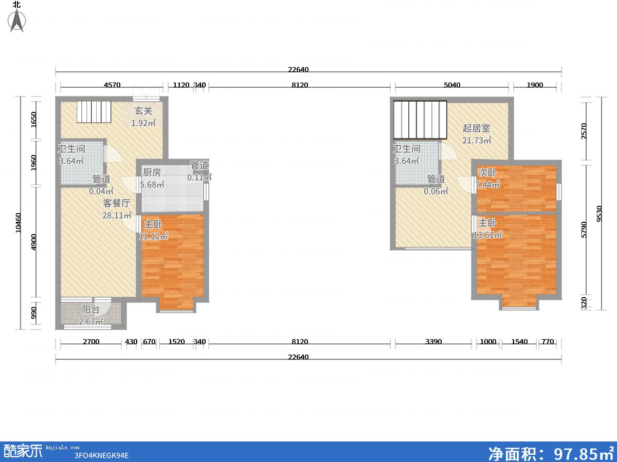
包头阳光尚品・悦128㎡
-
日期:2018-06-27
-
点击:902
套内面积: 97.85平方米
楼盘信息: 内蒙古 包头 阳光尚品・悦
提交信息,试试看!
已有96人提交

