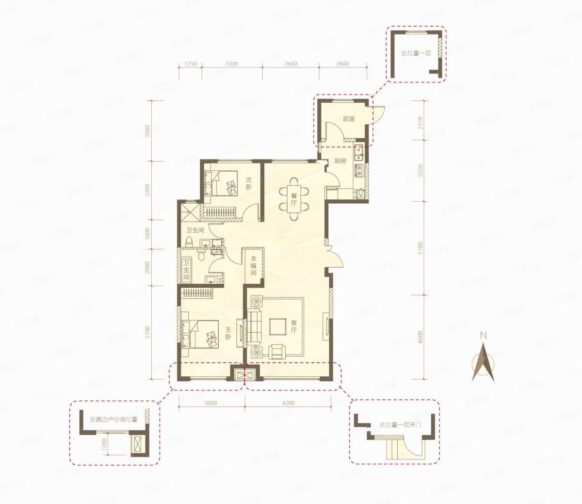
锦尚国际3#楼127㎡户型
-
日期:2019-07-21
-
点击:1218
锦尚国际3#楼127㎡户型,锦尚国际2室2厅2卫1厨约127.00平米户型图,朝南北朝向,玄关:阔绰独家入户,享受视野与空间的馈赠。客厅:大面积宽景客厅,从容大气。卫生间:人性化双卫设计,方便全家。
提交信息,试试看!
已有96人提交

