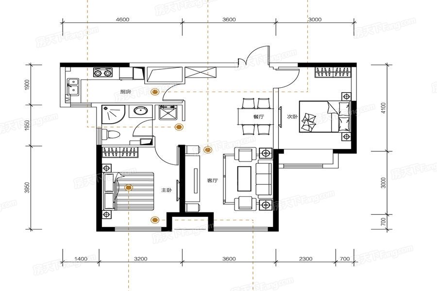
包头中冶华庭87㎡
-
日期:2018-06-10
-
点击:801
各个空间户型方正,方便室内家具布置;户型不是南北通透,整体空间无穿堂风;卧室进卫生间需要穿过餐厅或客厅;卫生间门朝向主要活动区域;客厅、卧室、卫生间和厨房等主要功能间的尺寸以及比例适中,有利于采光和通风,居住起来舒适、方便;公摊高于15%且低于25%,符合住宅公摊正常范围。
提交信息,试试看!
已有96人提交

