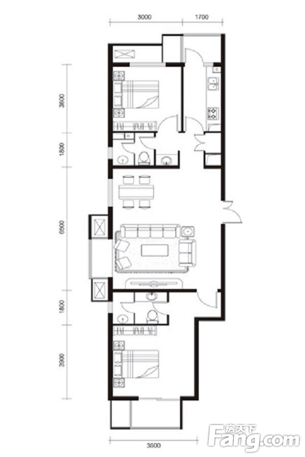
包头钢院学府105.90㎡
-
日期:2018-06-10
-
点击:840
各个空间户型方正,后期空间利用率高;全明通透户型,居住舒适度较高,整个空间采光充足,利于后期居住;入户门进厨房需要穿过客厅;次卧的面宽进深比不在标准范围内,装修时的空间改造,可提升对次卧的利用率;卫生间偏小,通过合理选择卫浴家具也可让卫生间实现其使用功能;厨房空间不算开阔,可通过橱柜的合理布局改善空间;公摊高于15%且低于25%,符合住宅公摊正常范围。
提交信息,试试看!
已有96人提交

