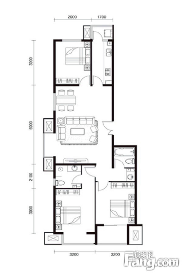
包头钢院学府114.28㎡
-
日期:2018-06-10
-
点击:838
整体户型方正,活动区域开阔,居住舒适度高;全明通透户型,居住舒适度较高,整个空间采光充足,利于后期居住;卧室进卫生间需要穿过餐厅或客厅;卧室门朝向客厅或餐厅;厨房门朝向客厅,能加装门即可规避油烟对客厅的影响;厨房空间不算开阔,日常使用功能可以满足,后期要减少不必要的器具装配,避免空间更加局促;公摊高于15%且低于25%,符合住宅公摊正常范围。
提交信息,试试看!
已有96人提交

