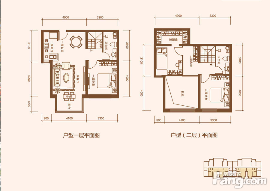
包头裕名新城(理想城)73㎡
-
日期:2018-06-10
-
点击:738
各个空间户型方正,后期空间利用率高;卫生间没有对外窗户;整体空间布局合理,能够保证动静分离和居室通风,方便使用;各个功能区的尺寸比例规范,布局合理,能很好地满足日常功能需求,整体空间开阔,采光充足,居住舒适度好;公摊高于15%且低于25%,符合住宅公摊正常范围。
提交信息,试试看!
已有96人提交

